



Artemis Imobiliare vă oferă spre vânzare o casă /duplex cu 4 camere, în zona Fagului
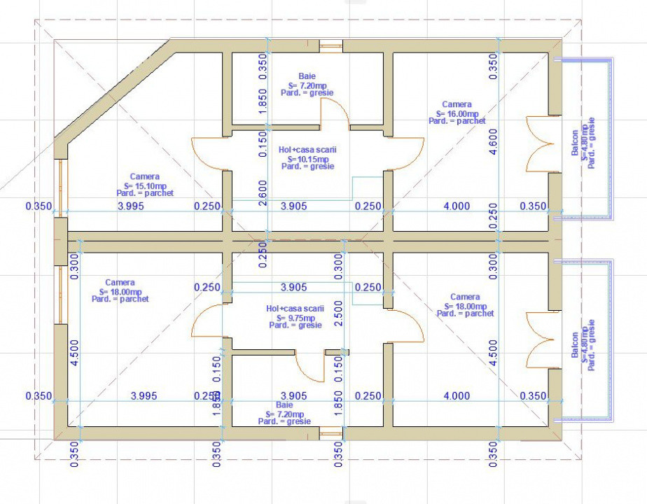
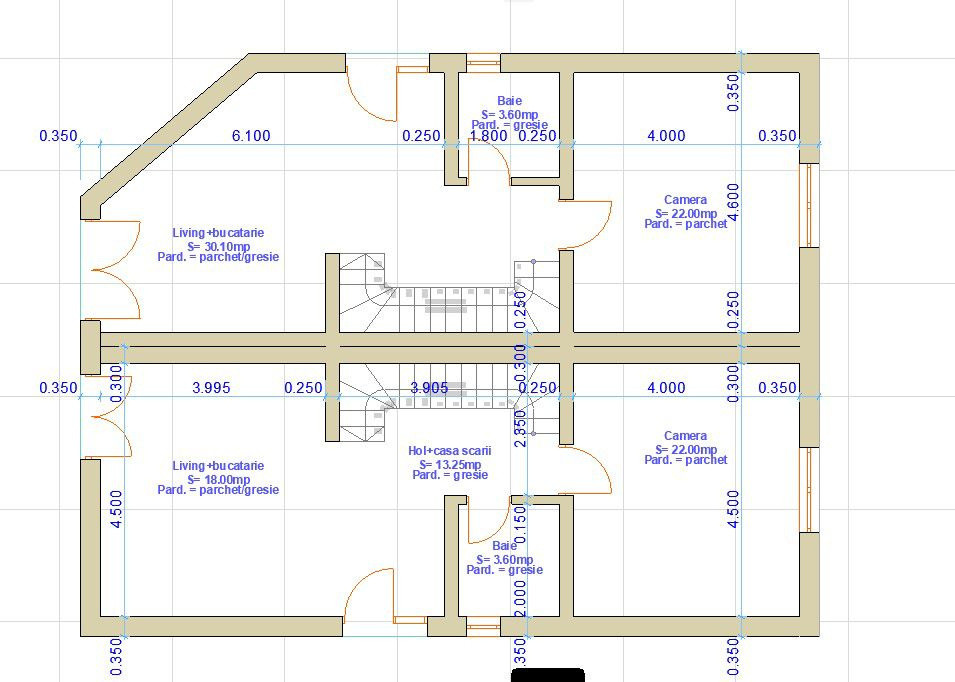
Imobilul este construit pe o parcela de teren in suprafață totala de 500mp, are regimul de inaltime P+1+Pod.
Suprafața liberă de teren este de 150 mp.
Casa are o suprafata utila de 120 mp, fiind compartimentată astfel:
- parterul este compus din: bucătărie open space cu livingul, dormitor si baie.
- etajul este compus din: 2 dormitoare, baie, hol și balcon.
Casa se vinde la stadiul de semifinisat.
Dispune de 2 locuri de parcare exterioare.
Vă așteptăm la vizionare!
ID extern: P150665
🔍 Transparență și încredere – promisiunea noastră
Informațiile prezentate în această ofertă provin din declarațiile proprietarului.
Echipa noastră face toate eforturile pentru a le verifica și a-ți oferi o imagine cât mai fidelă a proprietății.
📌 Totuși, pot exista situații în care unele detalii nu corespund 100% realității, din motive independente de noi, de aceea nu putem garanta corectitudinea sau actualitatea tuturor informațiilor insa ne angajăm să îți oferim sprijin constant și clarificări în fiecare etapă!