



Artemis Imobiliare vă oferă spre vânzare o casă/duplex/ cu 4 camere, în zona Razoare
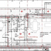
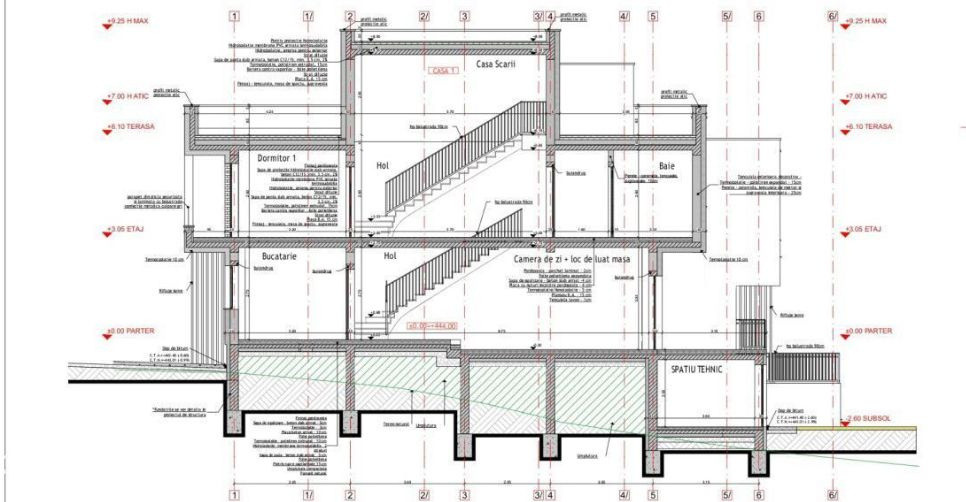
Imobilul este construit pe o parcela de teren in suprafață totala de 270mp, are regimul de inaltime D+P+1+Terasa circulabila.
Casa este in curs de finalizare, termen predare mai 2026.
Suprafața liberă de teren este de 180 mp.
Casa are o suprafata utila de 180 mp, fiind compartimentată astfel:
- demisol este compus din spatiu tehnic.
- parterul este compus din: bucătărie, living, hol, baie si terasă.
- etajul este compus din: 3 dormitoare, 2 bai, hol și balcon.
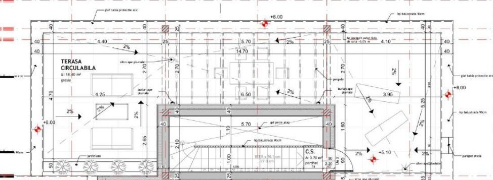
- terasa circulabila.
Casa se vinde la stadiul de semifinisat.
Dispune de 2 locuri de parcare.
Pretul afisat este pentru achizitia de catre persoana juridica, iar pentru persoana fizica se adauga TVA.
Vă așteptăm la vizionare!
ID extern: P150684
🔍 Transparență și încredere – promisiunea noastră
Informațiile prezentate în această ofertă provin din declarațiile proprietarului.
Echipa noastră face toate eforturile pentru a le verifica și a-ți oferi o imagine cât mai fidelă a proprietății.
📌 Totuși, pot exista situații în care unele detalii nu corespund 100% realității, din motive independente de noi, de aceea nu putem garanta corectitudinea sau actualitatea tuturor informațiilor insa ne angajăm să îți oferim sprijin constant și clarificări în fiecare etapă!